MENU

大阪府堺市の不動産売買は株式会社三幸ハウジングにお任せください。

072-276-1173

お問い合わせ

預かり物件

property

預かり物件

property

  • 一戸建て

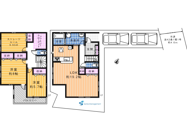
堺市中区深井水池町 新築戸建て

POINT

駐車場2台分のスペースを備えた新築戸建
複数台所有にも対応できる住まいです

建物名
堺市中区深井水池町 新築戸建て
所在地
堺市中区深井水池町
価格
4580万円
アクセス
南海泉北線「深井駅」徒歩11分
間取り
2LDK+S
建物面積
106.82㎡
土地面積
124.73㎡
所在階
1階
用途地域
第一種住居地域
築年数
2026年3月
接道状況
公道:北東 幅4.6m
構造
木造
現況
空家
建ぺい率
60%
容積率
200%
小学校区
堺市立東深井小学校
中学校区
堺市立深井中学校
取引形態
一般
詳細
各居室に収納があり、ご家族それぞれの荷物もすっきり整理可能
ウォークインクローゼット付きで収納に困らない住まいです

小学校も徒歩6分と近く通学にも安心
徒歩圏内にスーパー、コンビニがあり
日々の暮らしがスムーズな立地です
■周辺環境
スーパー 徒歩4分(約320m)
コンビニ 徒歩4分(約300m)
ドラッグストア 徒歩5分(約380m)
堺市立東深井小学校 徒歩6分(約440m)
堺市立深井中学校 徒歩13分(約970m)

頭金ゼロ円、月々11万円台から購入能です
ローンやリフォームについて何でもお気軽にお問い合わせ下さい

周辺地図

SELL MENU

不動産のご売却を検討の方

BUY MENU

不動産のご購入を検討の方